Skip to content

Gesundheit

Umbau Dermatologische Klinik,
Inselspital Bern

Auftraggeber

Inselspital,
Bern

Bau- und Umzugsmanagement

Bouygues E&S Schweiz AG, Schlieren
Nutzer/Betrieb
Derma- und Reumatologie, interne Betriebe Inselspital
Zeitraum

2022–2023

Kennzahlen
950m2 Bruttogeschossfläche

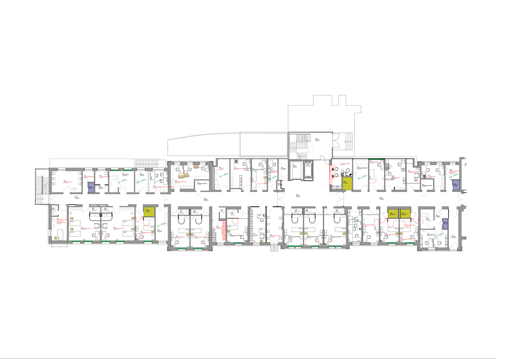
Das Strategische Immobilien- und Betriebsmanagement beauftragte das Projektmanagement Infrastruktur des Inselspitals damit, die Angebote der Rheumatologie und Immunologie aus dem ehemaligen Personalhaus 6 sowie dem Anna-von-Krauchthal-Haus in die Dermatologische Poliklinik zu integrieren.
Zur Sicherstellung einer nahtlosen medizinischen Versorgung wurden die Leistungen der Rheumatologie und Immunologie an den neuen Standort verlegt, während die bisherigen Angebote der Universitätsklinik für Dermatologie in die Dermatologische Klinik umgezogen wurden. Alle Umbauten und Umzüge wurden im Rahmen des Projekts «Prozessverbesserung Dermatologie» mit minimalem baulichen Aufwand und während des laufenden Betriebs umgesetzt. Ziel war es, das Personalhaus 6 bis Ende 2022 vollständig zu räumen und gleichzeitig funktionale sowie geeignete Räumlichkeiten für alle beteiligten Fachbereiche bereitzustellen.

Projektleitung Bauherr mit
folgenden Aufgaben:

  • Vertretung der Bauherrschaft gegenüber Kliniken, Betrieben, Planern und Behörden
  • Erstellung und Freigabe des Projektantrags
  • Teilnahme an Kernteamsitzungen inklusive Freigabe der Protokolle
  • Regelmässige Berichtserstattung zum aktuellen Bearbeitungsstand mit Auftraggeber
  • Laufende Kontrolle der Kosten und Termine sowie Freigabe von Rechnungen
  • Abnahme des Gesamtprojekts einschliesslich Beizug aller Beteiligten
  • Erstellung und Präsentation des Projektabschlussberichts inklusive Revisionsunterlagen
Was waren die Herausforderungen:

Der etappenweise Umbau der Dermatologischen Klinik im laufenden Spitalbetrieb – unter Berücksichtigung von Corona-Auflagen und Wochenendumzügen – stellte hohe Anforderungen an Planung und Erfahrung.
Baustellenlogistik und Sicherheit wurden so organisiert, dass der Betrieb uneingeschränkt weiterlaufen konnte. Durch klare Kommunikation mit Nutzerinnen und Nutzern, Patientinnen und Patienten sowie Besucherinnen und Besuchern konnten Störungen minimiert werden, während Hygiene, Lärm- und Staubkontrollen konsequent umgesetzt wurden.
Besonders herausfordernd war es, die Klinikverantwortlichen unter diesen Bedingungen respektvoll ins Projekt einzubinden. Trotz der komplexen Rahmenbedingungen konnten Umbaumassnahmen und Umzüge termingerecht und innerhalb des bewilligten Budgets erfolgreich abgeschlossen werden.

×

Linkedin

BAUBEWEGER GmbH
Nelkenstrasse 16
2540 Grenchen

+41 (0)79 251 14 40
info@baubeweger.com